menu Close
STAGE 1 - READY TO MOVE IN PENTHOUSE STAGE 2 - UNDER CONSTRUCTION COMPLETION 4Q 2026 STAGE 2 - FLATS OFFER STAGE 2 - UNDER CONSTRUCTION COMPLETION 4Q 2026 STAGE 2 - ROOF TOWNHOUSES STAGE 2 - UNDER CONSTRUCTION COMPLETION 4Q 2026 STAGE 2 - COMMERCIAL PREMISES planning preparation STAGE 3
Close
1. FLOOR
2. FLOOR
3. FLOOR
4. FLOOR
5. FLOOR
6. FLOOR
7. FLOOR
1. FLOOR
1
2. FLOOR
2
3. FLOOR
3
4. FLOOR
4
5. FLOOR
5
6. FLOOR
6
7. FLOOR
7
Choose your homeStart by selecting the floor in the picture
Close
Courtyard of the project
Courtyard of the project
Courtyard of the project
Dělnická st.
R R R R R R R R R R R R
panoramic view
of Prague
V Háji st.
V Háji st.
Courtyard of the project
V Háji st.
select the flat
select unit
back to floors
Your favouritesFavourites (collapseexpand) 0

Request

We inform you about the processing of personal data.

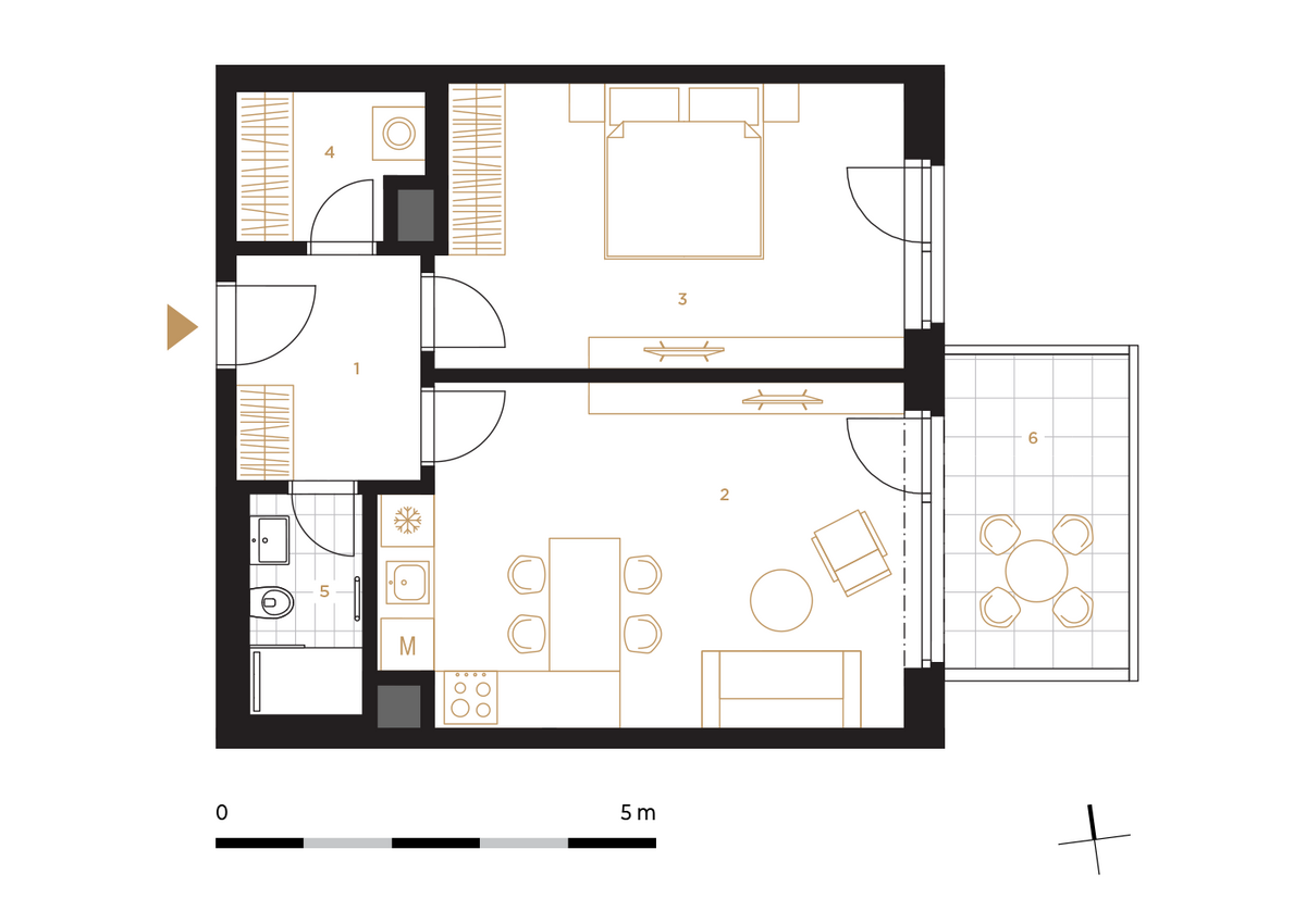
Byt# A1.7.09

2+kk 56,2 m2 7th floor
Air conditioning

List of rooms

1 entrance hall 6,0 m2
2 living room + kitchenette 22,3 m2
3 room 17,0 m2
4 closet 3,3 m2
5 bathroom 3,2 m2
usable area 51,8 m2
floor area 56,2 m2
6 balcony 7,9 m2
A1.7.09
A1.7.09

The floor plan represents a solution of a unit for marketing purposes only. All data in this layout are for information only. Names, descriptions, dimensions and area are for guidance only. The devices and equipment shown (furniture, kitchen unit, electrical appliances, etc.) are not included in the delivery of unit. The exact scope of delivery and areas are specified in the contract. All data in this layout are for information purposes only and may differ from the actual ones.

1) Prices in EUR are for guidance only.