Klientský portálKlientský portál Menu Zavřít
ETAPA 1 - IHNED K NASTĚHOVANÍ PENTHOUSE ETAPA 2 - VE VÝSTAVBĚ DOKONČENÍ 4Q 2026 ETAPA 2 - NABÍDKA BYTŮ ETAPA 2 - VE VÝSTAVBĚ DOKONČENÍ 4Q 2026 ETAPA 2 - STŘEŠNÍ TOWNHOUSY ETAPA 2 - VE VÝSTAVBĚ DOKONČENÍ 4Q 2026 ETAPA 2 - KOMERČNÍ PROSTORY plánujeme přípravu ETAPA 3
Zavřít
1. PODLAŽÍ
2. PODLAŽÍ
3. PODLAŽÍ
4. PODLAŽÍ
5. PODLAŽÍ
6. PODLAŽÍ
7. PODLAŽÍ
1. PODLAŽÍ
1
2. PODLAŽÍ
2
3. PODLAŽÍ
3
4. PODLAŽÍ
4
5. PODLAŽÍ
5
6. PODLAŽÍ
6
7. PODLAŽÍ
7
Vyberte si svůj domovzačněte výběrem podlaží na obrázku
Zavřít
vnitroblok domu
vnitroblok domu
vnitroblok domu
ul. Dělnická
R R R
panoramatický výhled
na Prahu
ul. V Háji
ul. V Háji
vnitroblok domu
ul. V Háji
vyberte byt
vyberte jednotku
zpět na podlaží
vaše oblíbenéOblíbené (sbalitrozbalit) 0

Poptávka

Informujeme o zpracování osobních údajů.

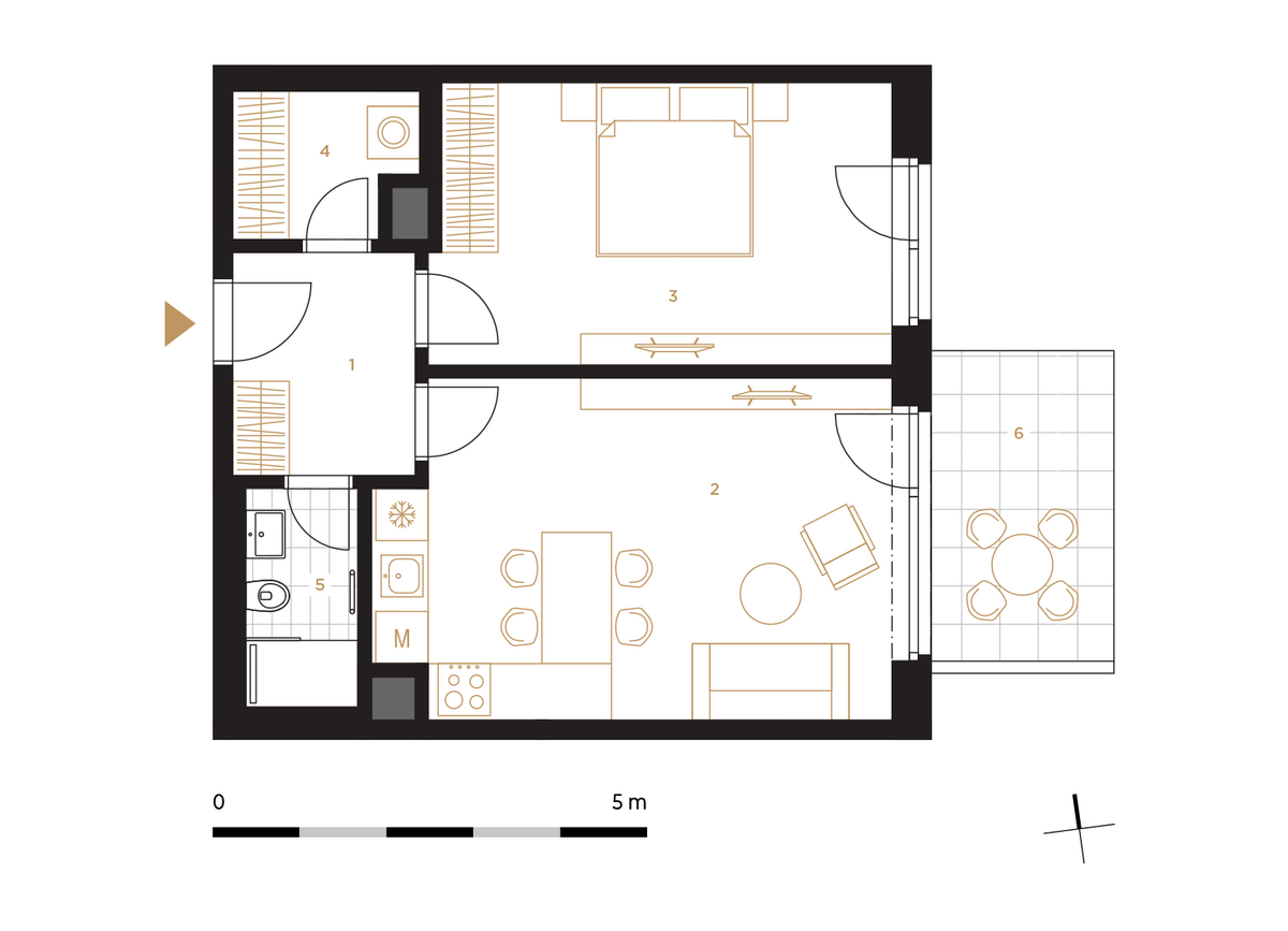
Byt# A1.3.09

2+kk 56,2 m2 3. NP
Klimatizace

Přehled místností

1 vstupní hala 6,0 m2
2 obývací pokoj + kk 22,3 m2
3 pokoj 17,0 m2
4 komora 3,3 m2
5 koupelna 3,2 m2
Užitná. plocha 51,8 m2
Podl. plocha 56,2 m2
6 balkon 7,9 m2
A1.3.09
A1.3.09

Schéma půdorysu představuje řešení bytové jednotky pro marketingové účely. Veškeré údaje v tomto schématu mají pouze informativní charakter. Názvy, popisy, kóty a plošné výměry jsou pouze orientační. Vyobrazená zařízení a vybavení (nábytek, kuchyňská linka, elektrické spotřebiče, atd.) nejsou součástí dodávky. Přesný rozsah dodávky a ploch je specifikován ve smlouvě. Veškeré údaje v tomto schématu mají pouze informativní charakter a mohou se lišit od skutečnosti.

1) Ceny v EUR jsou pouze orientační.